Leistungen
Immobilienvermittlung
Immobilienverwaltung
Immobiliengutachten
Interessentenprofilsuche
Aktuelles
Unternehmen
Über Immobilien Borger
Team
Kontakt
Startseite
Leistungen
Immobilienvermittlung
Immobilienverwaltung
Immobiliengutachten
Interessentenprofilsuche
Aktuelles
Unternehmen
Über Immobilien Borger
Team
Kontakt
Zurück zur Ergebnisseite
Ergebnis teilen:
15484 Barrierefreies Innenstadtbüro!
Allgemeine Daten
Objekt-Nr:
15484
Stand:
11.03.2026
Verfügbar ab:
nach Vereinbarung
Standort
PLZ/Ort:
13100 St. Pölten
Lage:
Fußgängerzone
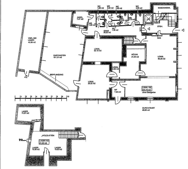
Flächen
Bürofläche:
274,35 m²
Nutzfläche:
ca. 274,35 m²
Fläche:
Nutzfläche ca. 274,35 m²
Preise
Gesamtmiete:
€ 2.832,30
HMZ:
€ 1.980,00
HMZ Netto:
€ 1.650,00
HMZ (%):
20 %
Miete/m²:
€ 6,01
Betriebskosten:
€ 852,30
Provision:
3MM
Provision (Betrag netto):
€ 8.496,90
Provision (Betrag Ust):
€ 1.699,38
Provision (Betrag brutto):
€ 10.196,28
Kaution (Betrag):
€ 12.000,00
Betriebskosten (%):
20 %
Betriebskosten (Netto):
€ 710,25
Mehrwertsteuer Summe:
€ 472,05
Zustand
Zustand:
gut
Heizwärmebedarf:
134,13 kWh/m²
Energieklasse:
D
Sonstige Infos
Dauer min:
5 Jahre
Anschlüsse:
Kanal, Strom, Wasser, Gas
Heizung:
ZH, Gas
Mobiliar:
Möbliert
Baujahr:
1850
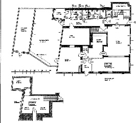
Detailbeschreibung
Zur Vermietung gelangen Büroräumlichkeiten in der St. Pöltner Innenstadt!
Die Räumlichkeiten sind ebenerdig gelegen, ein Ausgang in den Innenhof zur alleinigen Benutzung ist vorhanden.
Das Lokal wurde ehemals zu Gastronomiezwecken benutzt und wird jederzeit geräumt und als Büroräumlichkeit vergeben.
Mitvermietet wird ein Kellerraum.
Die Heizkosten sind direkt mit dem Versorgungsunternehmen zu verrechnen Fernwärme.
Dokumente
Nebenkostenübersicht und weitere Informationen 1 (PDF)
Nebenkostenübersicht und weitere Informationen 2 (PDF)
Kontakt
Anrede:
Frau
Name:
Irma BORGER
Telefon:
02742/35 23 32
E-Mailadresse:
<Diese E-Mail-Adresse ist gegen Spam Bots geschützt, zum Ansehen müssen Sie in Ihrem Browser JavaScript aktivieren.>
Objekt
*
Vorname
*
Nachname
*
E-Mail Adresse
*
Telefonnummer
*
Bemerkung
*
Alle mit * gekennzeichneten Felder sind Pflichtfelder.
Bitte dieses Feld nicht ausfüllen.
Bitte dieses Feld nicht ausfüllen.
Ähnliche Objekte
15485 Barrierefreies Innenstadtbüro unbefristet zu vergeben!
Standort:
St. Pölten (Stadt), NÖ
3100 St. Pölten
Fläche:
318 m²
15486 Büroräumlichkeiten in der St. Pöltner Innenstadt!
Standort:
St. Pölten (Stadt), NÖ
3100 St. Pölten
Fläche:
592 m²
15470 - 20m² Büroraum zu vermieten
Standort:
St. Pölten (Land), NÖ
3204 Kirchberg an der Pielach
Fläche:
19 m²
15030 BARRIEREFREIES INNENSTADTBÜRO!
Standort:
St. Pölten (Stadt), NÖ
3100 St. Pölten
Fläche:
53 m²
Immobilien finden
Bundesland
Burgenland
Niederösterreich
Wien
Bezirk / Ort
Neusiedl am See
Krems an der Donau (Stadt)
St. Pölten (Stadt)
Gänserndorf
Gmünd
Krems (Land)
Lilienfeld
Melk
St. Pölten (Land)
Wien 10., Favoriten
Wien 17., Hernals
Hauptkategorie
Grundstücke
Anlageobjekte
Betriebsobjekte
Wohnungen
Büros
Land- und Forstwirtschaften
Kauf
Miete
Objektsuche
Sie kennen Ihre Wunschimmobilie und die dazugehörige Objektnummer schon? Geben Sie unten die Nummer ein und Sie bekommen alle Informationen zu Ihrer Traumimmobilie.