15423 Alle Zimmer getrennt begehbar, Bahnhofsnähe!

Allgemeine Daten

Objekt-Nr:
15423
Stand:
30.10.2025
Verfügbar ab:
sofort

Standort

PLZ/Ort:
2230 Gänserndorf
Bezirk:
Gänserndorf, Niederösterreich
Nähe:
Bahnhof
Stockwerksangabe bei Ausstattung:
3

Flächen

Wohnfläche:
71,00 m²
Fläche:
Wohnfläche 71,00 m²
Anzahl Zimmer:
3
Anzahl Badezimmer:
1
Keller:
vorhanden
Lift:
vorhanden
Loggia:
1

Preise

Gesamtmiete:
€ 830,00
HMZ:
€ 830,00
HMZ Netto:
€ 830,00
Miete/m²:
€ 11,69
Kaution:
Fixbetrag
Kaution (Betrag):
€ 3.100,00

Zustand

Zustand:
sehr gut
Heizwärmebedarf:
199,00 kWh/m²
Energieklasse:
E

Sonstige Infos

Dauer max:
5 Jahre
Dauer min:
5 Jahre
Heizung:
ZH
Mobiliar:
Küche möbliert
Baujahr:
1970

Detailbeschreibung

Zur Vermietung gelangt eine sehr gepflegte Wohnung in der Nähe des Bahnhofes (2 Minuten Gehweg)!

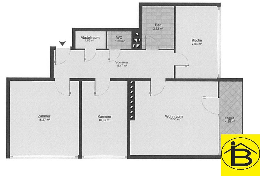
Der Mietgegenstand mit einer Wohnnutzfläche im Ausmaß von ca.71 m² bestehend aus Vorraum, Abstellraum, Bad mit Wanne, separates WC, Küche, Wohnzimmer mit Ausgang auf die verglaste Loggia, Schlafzimmer und Kinderzimmer!

Mitvermietet wird ein Kellerabteil.

Den Bewohnern der Liegenschaft stehen ein Kinderwagen-, Fahrradabstellraum sowie eine Waschküche mit Trockenraum zur Verfügung.

Die monatlichen Kosten von 830,00 verstehen sich inkl Betriebskosten.

Die derzeitigen Heizkosten und Warmwasserkosten von € 190,00 werden von der Hausverwaltung zusätzlich im Monat verrechnet.


Kontakt

Anrede:
Frau
Name:
Irma BORGER
Telefon:
02742/35 23 32
E-Mailadresse:
<Diese E-Mail-Adresse ist gegen Spam Bots geschützt, zum Ansehen müssen Sie in Ihrem Browser JavaScript aktivieren.>
Alle mit * gekennzeichneten Felder sind Pflichtfelder.